Casa semindipendente in vendita

Prato, Via del Lazzeretto - Le Badie
€ 299.000
5 locali 5 locali
125 Mq 125 Mq
1 bagno 1 bagno

Casa semindipendente in vendita

Prato, Via del Lazzeretto - Le Badie

Descrizione annuncio

LE BADIE- Via del Lazzaretto

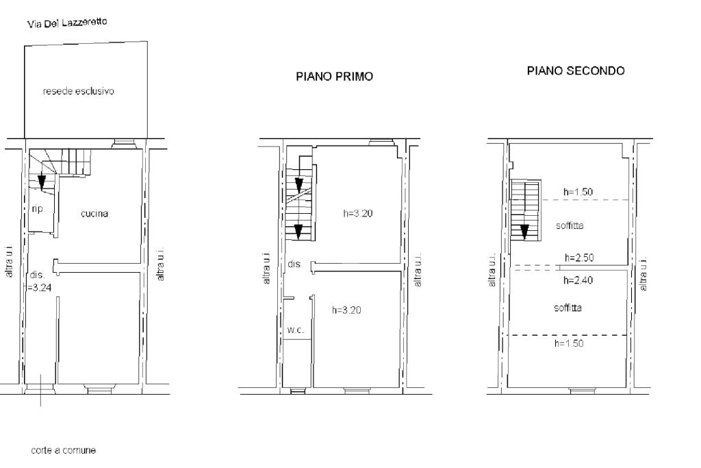
NOSTRA ESCLUSIVA - In una zona ben fornita e collegata delle Badie proponiamo una soluzione semindipendente articolata su tre livelli.

Aprendo la porta d'ingresso siamo subito accolti dall'ampio e lungo disimpegno che divide tutti gli ambienti: sulla destra troviamo il doppio e luminoso soggiorno. Proseguendo nel disimpegno, invece, troviamo il primo bagno cieco utilizzato anche come vano lavanderia, la sala pranzo e la cucina abitabile

Al primo piano si sviluppa la zona notte la quale è composta da due camere matrimoniali, da una delle quali ha l'accesso alla mansarda. Completa la zona notte il bagno finestrato con la vasca.

Al secondo piano, invece, abbiamo la mansarda abitabile, che può essere adibita come terza camera, con accesso al terrazzo. Completa la proprietà la corte interna.

Concludiamo la descrizione aggiungendo che l'immobile è stato ristrutturato esternamente nel 2019 tra cui sia le facciate sia il tetto, completamente ristrutturato così come anche la caldaia sostituita e messa nuova.

Per ricevere maggiori informazioni e/o fissare un appuntamento contattateci allo 05741854734 o 3248716475 o scriveteci via e-mail a pocs6

Mostra tutto

Nelle vicinanze

Trasporto pubblico Trasporto pubblico
stazione di Prato Centrale
stazione di Prato Centrale
2,8 Km
Del Lazzaretto 47/F
Del Lazzaretto 47/F
160 m
Lazzeretto Sn
Lazzeretto Sn
200 m
Ricariche auto elettriche Ricariche auto elettriche
GMG SPA Concessionaria Mercedes Benz | EnelX
1,1 Km
Estra Sede
1,3 Km
Estra Parcheggio Piazza dei Macelli
2,3 Km
Estra Martini
2,5 Km
Estra Mercatale
2,6 Km
Scuole Scuole
Scuola Primaria "Le Fonti"
360 m
Istituto Comprensivo Elemntare Cafaggio - Laura Poli
860 m
Scuola Primaria
920 m
Scuole
1,6 Km
Ilva Pacetti - Carlo Alberto dalla Chiesa
1,8 Km
Farmacia Farmacia
Farmacia Lloyds
540 m
Farmacia
940 m
Antica Farmacia Pittei
1,9 Km
Farmacia di Mezzana
2,1 Km
Farmacia comunale
2,2 Km
Ospedali Ospedali
Studi medici Pediatri
970 m
Studi medici di famiglia
970 m
Supermercati Supermercati
Penny Market
530 m
Sigma
650 m
Esselunga Superstore
900 m
Pam
1,4 Km
NaturaSì
1,8 Km
Negozi Negozi
Ciesse Casual
520 m
Globo
1,1 Km
Panificio Colzi
2,0 Km
Negozi
2,1 Km
United Colors of Benetton
2,4 Km
Bar Bar
Bar
980 m
Bar Tazza d'Oro
1,4 Km
Bar Muretto
1,5 Km
RistoDisco Oca Fioca
1,9 Km
bar in famiglia Hangar cafè prato
2,0 Km
Ristoranti Ristoranti
Nikko Sushi
560 m
Ristorante Via Roma
950 m
Ristoranti
970 m
Ristorante Pizzeria Il ragno
1,1 Km
Roadhouse
1,2 Km
Mostra tutto

Caratteristiche

Rif.:
61133517
Piano:
Su più livelli
Terrazzi:
1
Camere da letto:
3
Arredamento:
Assente
Condizionamento:
Autonomo
Mostra tutto
Prezzo Prezzo
€ 299.000
Rata mutuo Rata mutuo
€ 1.409 / mese
Spese annue Spese annue
€ 0
Proponi il tuo prezzoProponi il tuo prezzo

Classe Energetica

F
F
F
F
F
F
F
F
F
EP invernale del fabbricato:
EP estiva del fabbricato:
Anno di costruzione:
1960
Riscaldamento:
Autonomo
Tipo impianto:
A radiatori
Tipo alimentazione:
Metano

Ti interessa visionare l'immobile?

Fissa un appuntamento  Fissa un appuntamento

Richiedi informazioni

Clicca su Leggi per aprire l'informativa
* Questi campi sono obbligatori

Calcola il tuo mutuo

Semplice e senza impegno
Anticipo

( % )
Mutuo

( % )

pochi semplici passi

inserisci i tuoi dati
Questionario completato
Grazie per aver richiesto un appuntamento senza impegno con un nostro Consulente del Credito e Assicurativo.

Hai inserito correttamente tutti i dati necessari e a breve riceverai una e-mail con un link da convalidare per inviare i tuoi dati.
Affiliato
Studio Badie-Grignano Sas
Via Galileo Ferraris, 61/63 59100 Prato (PO)

Il nostro staff


  • Francesca Bartoli
    Coordinatrice

  • Miruna Raluca Podarelu
    Collaboratrice

  • Luigi Ricciardi
    Affiliato
Via Galileo Ferraris, 61/63 59100 Prato (PO)
Zona: Prato-Badie-Grignano
Mostra su mappa
Affiliato
Studio Badie-Grignano Sas
Via Galileo Ferraris, 61/63 59100 Prato (PO)

2026 Tecnocasa Franchising S.p.A. - P. IVA 08365160152 - Via Monte Bianco 60/A 20089 Rozzano (MI). Ogni agenzia ha un proprio titolare ed è autonoma. Privacy policy | Policy utilizzo | Cookie policy