Quadrilocale in vendita

Prato, Via Armando Meoni - Grignano
€ 225.000
4 locali 4 locali
80 Mq 80 Mq
1 bagno 1 bagno

Quadrilocale in vendita

Prato, Via Armando Meoni - Grignano

Descrizione annuncio

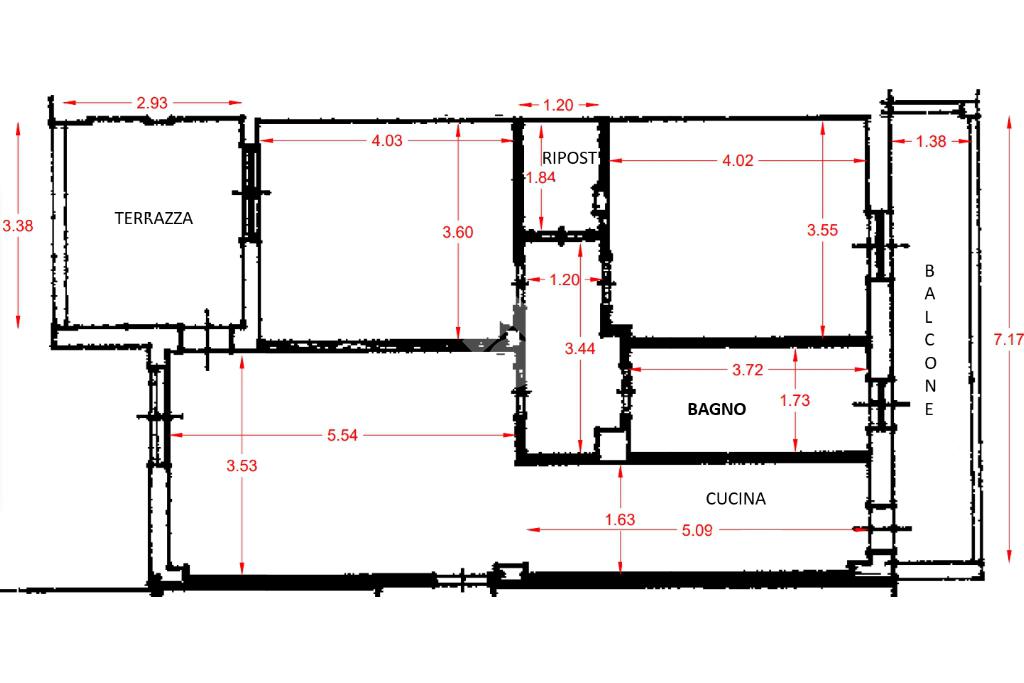
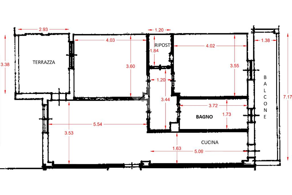
GRIGNANO - VIA ARMANDO MEONI

NOSTRA ESCLUSIVA - Proponiamo in vendita, per un ottimo investimento, in una zona piena di servizi un appartamento di 3,5 vani già affittato fino al 2028.

L'appartamento si trova al secondo piano di un palazzo con ascensore.

Le due camere da letto matrimoniali sono entrambe molto spaziose e luminose.

Il bagno ha una doccia ed è finestrato.

Il soggiorno è molto ampio ed è collegato alla cucina non abitabile con angolo cottura che ci conduce ad uno spazioso balcone che percorre la lunghezza della casa.

Dall'altro lato dell'appartamento si ha invece un ampio e comodo terrazzo verandato.

In quasi tutti i locali troviamo l'aria condizionata.

L'immobile offre anche uno spazioso ripostiglio ed un posto auto al coperto sotto il condominio.

Ad aggiungere valore alla proprietà la ristrutturazione interna datata al 2015, la e la presenza di affittuari educati e disponibili.

Per ricevere maggiori informazioni e/o fissare un appuntamento contattateci allo 05741854734 oppure al 3248716475 o ancora scriveteci via e-mail a pocs6

Mostra tutto

Nelle vicinanze

Trasporto pubblico Trasporto pubblico
stazione di Prato Centrale
stazione di Prato Centrale
2,9 Km
Beethoven Sn
Beethoven Sn
100 m
Beethoven 64
Beethoven 64
120 m
stazione di Prato Porta al Serraglio
stazione di Prato Porta al Serraglio
2,9 Km
Ricariche auto elettriche Ricariche auto elettriche
GMG SPA Concessionaria Mercedes Benz | EnelX
1,0 Km
Estra Sede
1,0 Km
Estra Parcheggio Piazza dei Macelli
2,0 Km
COOP Parco Prato | EnelX
2,2 Km
Estra Martini
2,4 Km
Scuole Scuole
Istituto Comprensivo Elemntare Cafaggio - Laura Poli
140 m
Scuola Primaria
210 m
Scuola Primaria "Le Fonti"
910 m
Scuola materna Munari
1,6 Km
Scuole
1,7 Km
Farmacia Farmacia
Farmacia
280 m
Farmacia Lloyds
1,1 Km
Antica Farmacia Pittei
1,5 Km
Farmacia comunale
1,5 Km
Farmacia Comunale 12
2,0 Km
Ospedali Ospedali
Studi medici Pediatri
280 m
Studi medici di famiglia
300 m
Supermercati Supermercati
Penny Market
890 m
Esselunga Superstore
1,1 Km
Sigma
1,2 Km
Pam
1,3 Km
Eurospin
1,4 Km
Negozi Negozi
Ciesse Casual
850 m
Globo
1,7 Km
Terranova
2,1 Km
Yamamay
2,1 Km
Lawley
2,1 Km
Bar Bar
Bar
370 m
Capanno Blackout
1,8 Km
Bar Tazza d'Oro
1,9 Km
Prato City
2,1 Km
Viva
2,1 Km
Ristoranti Ristoranti
Ristorante Via Roma
240 m
Ristoranti
350 m
Nikko Sushi
1,1 Km
Ristorante Pizzeria da Virgilio
1,1 Km
Silvano
1,1 Km
Mostra tutto

Caratteristiche

Rif.:
61176520
Piano:
2 di 2 con ascensore (Piano medio)
Posti auto:
1
Balconi:
1
Terrazzi:
1
Camere da letto:
2
Mostra tutto
Prezzo Prezzo
€ 225.000
Rata mutuo Rata mutuo
€ 1.051 / mese
Spese annue Spese annue
€ 960
Proponi il tuo prezzoProponi il tuo prezzo

Classe Energetica

F
F
F
F
F
F
F
F
F
EP invernale del fabbricato:
EP estiva del fabbricato:
Anno di costruzione:
1990
Riscaldamento:
Autonomo
Tipo impianto:
A radiatori
Tipo alimentazione:
Metano

Ti interessa visionare l'immobile?

Fissa un appuntamento  Fissa un appuntamento

Richiedi informazioni

Clicca su Leggi per aprire l'informativa
* Questi campi sono obbligatori

Calcola il tuo mutuo

Semplice e senza impegno
Anticipo

( % )
Mutuo

( % )

pochi semplici passi

inserisci i tuoi dati
Questionario completato
Grazie per aver richiesto un appuntamento senza impegno con un nostro Consulente del Credito e Assicurativo.

Hai inserito correttamente tutti i dati necessari e a breve riceverai una e-mail con un link da convalidare per inviare i tuoi dati.
Affiliato
Studio Badie-Grignano Sas
Via Galileo Ferraris, 61/63 59100 Prato (PO)

Il nostro staff


  • Alexandru Costantin Bucatariu
    Collaboratore

  • Francesca Bartoli
    Coordinatrice

  • Miruna Raluca Podarelu
    Collaboratrice

  • Luigi Ricciardi
    Affiliato
Via Galileo Ferraris, 61/63 59100 Prato (PO)
Zona: Prato-Badie-Grignano
Mostra su mappa
Affiliato
Studio Badie-Grignano Sas
Via Galileo Ferraris, 61/63 59100 Prato (PO)

2026 Tecnocasa Franchising S.p.A. - P. IVA 08365160152 - Via Monte Bianco 60/A 20089 Rozzano (MI). Ogni agenzia ha un proprio titolare ed è autonoma. Privacy policy | Policy utilizzo | Cookie policy