Quadrilocale in vendita

Prato, Via I Maggio - Le Badie
€ 250.000
4 locali 4 locali
99 Mq 99 Mq
1 bagno 1 bagno

Quadrilocale in vendita

Prato, Via I Maggio - Le Badie

Descrizione annuncio

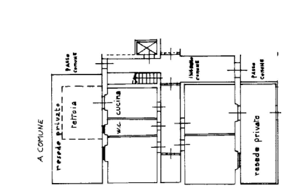
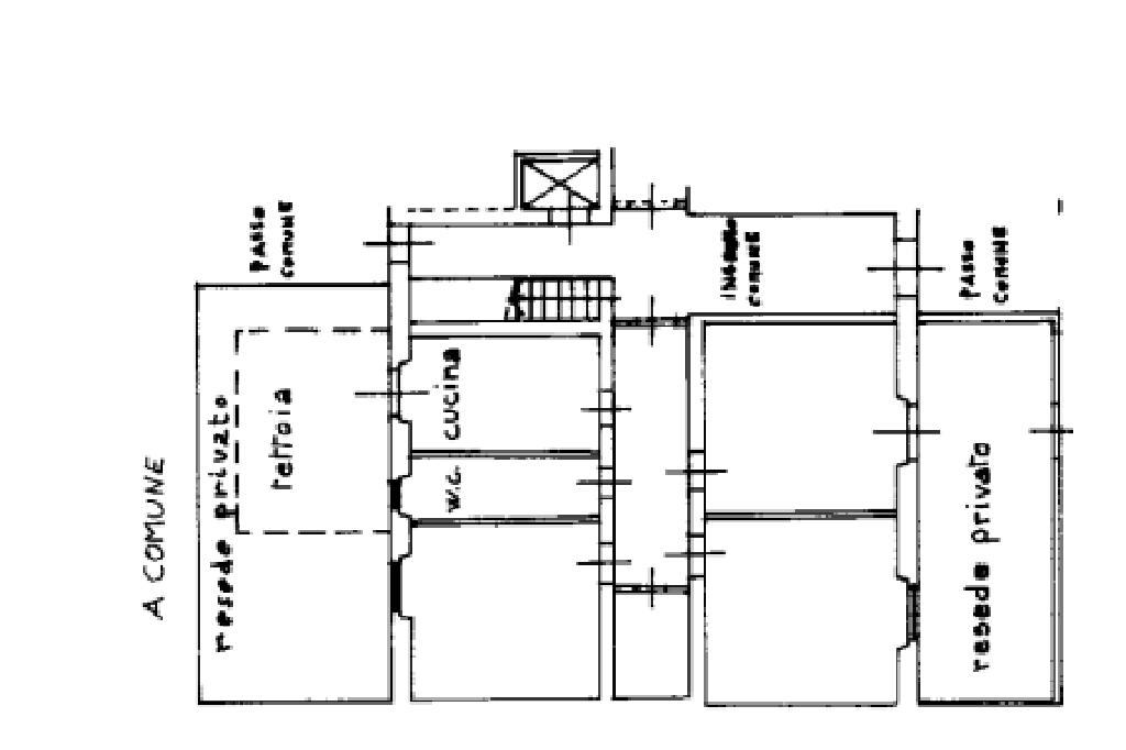
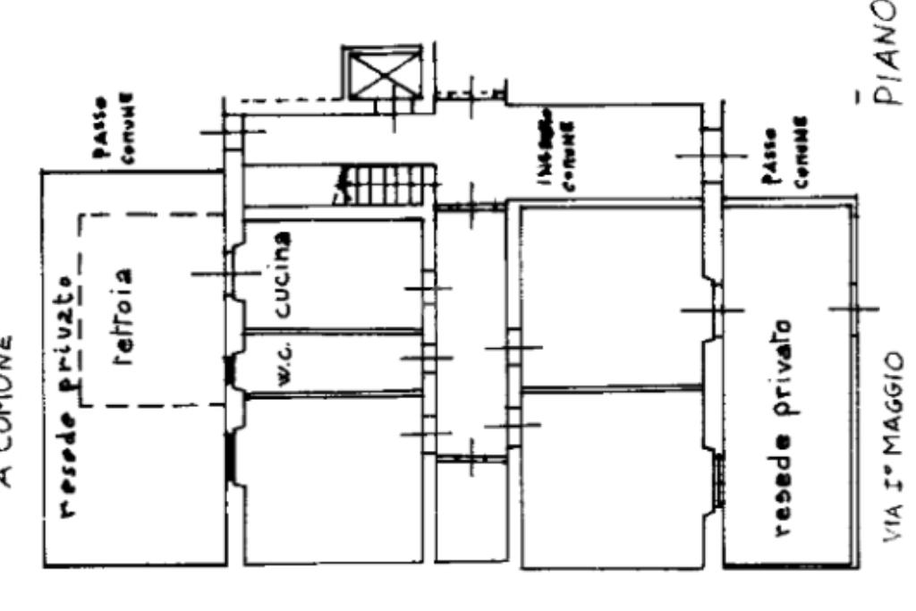
GRIGNANO - Via Primo maggio

NOSTRA ESCLUSIVA - In una via secondaria e parallela di Via Fiorentina, defilata dal caos cittadino, proponiamo, in vendita un appartamento di 4 vani al piano terra con doppio resede pavimentato. Ad accoglierci troviamo il luminoso soggiorno dal quale possiamo accedere al primo resede privato anteriore. Proseguendo, dal disimpegno troviamo la cucina con accesso al secondo resede tergale perfetto per organizzare pranzi e cene con amici e parenti. Il disimpegno, ci accompagna alla zona notte, composta da due camere matrimoniali ampie e molto luminose; finiamo la parte della zone notte con il bagno finestrato dotato di vasca e dall'utile ripostiglio molto ampio. La casa è fornita di aria condizionata. L'immobile si presenta in buono stato di manutenzione.

Per ricevere maggiori informazioni e/o fissare un appuntamento contattateci allo 05741854734o 3248716475 o scriveteci via e-mail a pocs6

Mostra tutto

Nelle vicinanze

Trasporto pubblico Trasporto pubblico
stazione di Prato Centrale
stazione di Prato Centrale
2,2 Km
Fiorentina 64
Fiorentina 64
80 m
Fiorentina 37
Fiorentina 37
100 m
stazione di Prato Porta al Serraglio
stazione di Prato Porta al Serraglio
2,3 Km
Ricariche auto elettriche Ricariche auto elettriche
GMG SPA Concessionaria Mercedes Benz | EnelX
320 m
Estra Sede
600 m
Estra Parcheggio Piazza dei Macelli
1,5 Km
Estra Martini
1,8 Km
Estra Mercatale
1,9 Km
Scuole Scuole
Scuola Primaria "Le Fonti"
600 m
Istituto Comprensivo Elemntare Cafaggio - Laura Poli
840 m
Scuola Primaria
880 m
Scuole
1,0 Km
Santagonda
1,6 Km
Farmacia Farmacia
Farmacia Lloyds
600 m
Farmacia
720 m
Antica Farmacia Pittei
1,2 Km
Farmacia Comunale 12
1,6 Km
Farmacia dell'ospedale
1,6 Km
Ospedali Ospedali
Studi medici di famiglia
760 m
Studi medici Pediatri
780 m
Supermercati Supermercati
Esselunga Superstore
370 m
Penny Market
390 m
Pam
610 m
Sigma
780 m
NaturaSì
1,1 Km
Negozi Negozi
Ciesse Casual
360 m
Globo
1,2 Km
United Colors of Benetton
1,7 Km
Negozi
1,7 Km
Panificio Colzi
1,7 Km
Bar Bar
Bar
660 m
Bar Tazza d'Oro
1,3 Km
Prato City
1,3 Km
Viva
1,4 Km
Capanno Blackout
1,4 Km
Ristoranti Ristoranti
Ristorante Pizzeria Il ragno
480 m
Piraña
550 m
Koto Ramen Prato
590 m
Aomori qīng sēn
600 m
Edora Wok
630 m
Mostra tutto

Caratteristiche

Rif.:
61136880
Piano:
Terra di 5 con ascensore
Totale piani:
5
Terrazzi:
2
Camere da letto:
2
Arredamento:
Parziale
Mostra tutto
Prezzo Prezzo
€ 250.000
Rata mutuo Rata mutuo
€ 1.178 / mese
Spese annue Spese annue
€ 600
Proponi il tuo prezzoProponi il tuo prezzo
Immobile valutato con T·Valuta

Classe Energetica

F
F
F
F
F
F
F
F
F
EP invernale del fabbricato:
EP estiva del fabbricato:
Anno di costruzione:
1970
Riscaldamento:
Autonomo
Tipo impianto:
A radiatori
Tipo alimentazione:
Metano

Ti interessa visionare l'immobile?

Fissa un appuntamento  Fissa un appuntamento

Richiedi informazioni

Clicca su Leggi per aprire l'informativa
* Questi campi sono obbligatori

Calcola il tuo mutuo

Semplice e senza impegno
Anticipo

( % )
Mutuo

( % )

pochi semplici passi

inserisci i tuoi dati
Questionario completato
Grazie per aver richiesto un appuntamento senza impegno con un nostro Consulente del Credito e Assicurativo.

Hai inserito correttamente tutti i dati necessari e a breve riceverai una e-mail con un link da convalidare per inviare i tuoi dati.
Affiliato
Studio Badie-Grignano Sas
Via Galileo Ferraris, 61/63 59100 Prato (PO)

Il nostro staff


  • Francesca Bartoli
    Coordinatrice

  • Miruna Raluca Podarelu
    Collaboratrice

  • Luigi Ricciardi
    Affiliato
Via Galileo Ferraris, 61/63 59100 Prato (PO)
Zona: Prato-Badie-Grignano
Mostra su mappa
Affiliato
Studio Badie-Grignano Sas
Via Galileo Ferraris, 61/63 59100 Prato (PO)

2026 Tecnocasa Franchising S.p.A. - P. IVA 08365160152 - Via Monte Bianco 60/A 20089 Rozzano (MI). Ogni agenzia ha un proprio titolare ed è autonoma. Privacy policy | Policy utilizzo | Cookie policy